高效送风口-高效过滤送风口

高效送风口是洁净系统中终端的一种送风装置,广泛应用在洁净室的顶部送风,其主要由静压箱、高效过滤器、散流板、风管连接法兰等组成,具有成本低、密封性能可靠、通用性强、安装方便、维护简单等特点。高效过滤送风口包括:有隔板高效过滤器送风口和无隔板高
产品概述:机械式高效送风口是洁净系统中终端的一种送风装置,广泛应用在洁净室的顶部送风,其主要由静压箱、高效过滤器、散流板、风管连接法兰等组成,具有成本低、密封性能可靠、通用性强、安装方便、维护简单等特点。产品广泛应用于半导体、精密仪器、生物制药、科研院所、汽车电子等领域。
产品特点:
1、散流板四周采用45°出风角度,使气流方向更均匀;
2、进风口设置风速导流板,可以将进风气流均匀分布过滤器进风面;
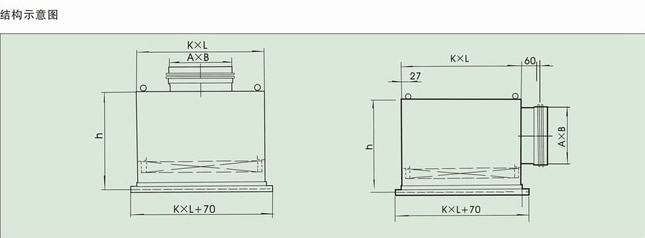
3、产品与安装现场风管的接口可根据客户要求,设计为侧进风或顶进风,接口方式可可分为圆形或矩形;
可选配置:
1、按材质要求:冷板静电烤漆、201/304砂光不锈钢、201/304镜面不锈钢;
2、按进风要求:侧面进风、顶部进风;
3、按风管接口要求:圆形、矩形;

高效送风口型号及技术参数:
|
规格型号 |
送风口外尺寸 D*W*H |
过滤器尺寸 D*W*H |
额定风量 m³/H |
进风口尺寸
|
风管连尺寸 |
安装开孔尺寸 |
吊杆间距 |
|
|
侧进风 |
顶进风 |
|||||||
|
YSW-SK-320C |
YSW-SK-320D |
370*370*520 |
320*320*220 |
500 |
200*200 |
250*250 |
380*380 |
340*340 |
|
YSW-SK-484C |
YSW-SK-484D |
534*534*520 |
484*484*220 |
1000 |
320*200 |
370*250 |
544*544 |
505*505 |
|
YSW-SK-610C |
YSW-SK-610D |
660*660*495 |
610*610*150 |
320*250 |
370*300 |
670*670 |
630*630 |
|
|
YSW-SK-820C |
YSW-SK-820D |
870*650*495 |
820*600*150 |
1200 |
320*250 |
370*300 |
880*660 |
840*620 |
|
YSW-SK-630C |
YSW-SK-630D |
680*680*570 |
630*630*220 |
1500 |
320*250 |
370*300 |
786*544 |
650*650 |
|
YSW-SK-726C |
YSW-SK-726D |
776*534*520 |
726*484*220 |
400*200 |
450*250 |
975*670 |
750*505 |
|
|
YSW-SK-915C |
YSW-SK-915D |
965*660*495 |
915*610*150 |
500*250 |
550*300 |
1028*544 |
935*630 |
|
|
YSW-SK-968C |
YSW-SK-968D |
1018*534*520 |
968*484*220 |
2000 |
500*200 |
550*250 |
1028*544 |
990*505 |
|
YSW-SK-1220C |
YSW-SK-1220D |
1270*660*495 |
1220*610*150 |
500*200 |
550*250 |
1280*670 |
1240*630 |
|
|
YSW-SK-945C |
YSW-SK-945D |
995*680*570 |
945*630*220 |
2200 |
500*250 |
550*300 |
1005*690 |
965*650 |
|
YSW-SK-1260C |
YSW-SK-1260D |
1310*680*570 |
1260*630*220 |
3000 |
600*250 |
650*300 |
1320*690 |
1280*650 |
在线留言
您对我们公司有什么好的建议和意见,或者想咨询我们的产品,请填写下面的表单, 我们会第一时间与您取得联系!
更多产品

返回
